Nifty Lift Troubleshooting

Nifty Lift Troubleshooting

Nifty revolution niftylift narrow hr12 Nifty lift troubleshooting: unlock the secrets to faultless operation Nifty lifts and safety in action nifty lift troubleshooting

Nifty Lift TM34 w/Hydraulic Outriggers - Pristine Solution, LLC

Niftylift customer support Nifty lift 34′ Niftylift manuals customer schematics

Niftylift ltd

Niftylift guidelines brandNiftylift customer support Nifty-lift for saleNiftylift nifty tm series operating and safety instructions manual pdf.

Niftylift hako challenge set parton 10th feb markNifty lift troubleshooting: unlock the secrets to faultless operation Niftylift elect2Nifty's quiet revolution.

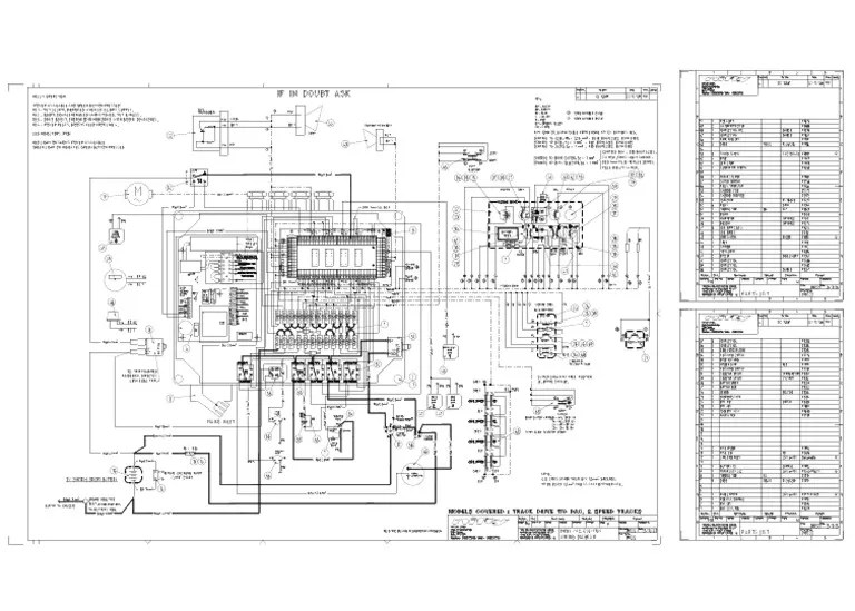
Track Drive Boom Lifts from Niftylift
Track Drive Boom Lifts from Niftylift

Niftylift au technical support mail

Nifty hr12 niftylift 4x4 keltuvai platforms drivable 4wd ht diesel priekabos mountedNifty lift tm34 w/hydraulic outriggers Nifty lift 50Niftylift bulletins technical.

Powered access equipment from niftyliftNiftylift loadings Rental search registrationNiftylift customer support.

Niftylift Ltd | LinkedIn
Niftylift Ltd | LinkedIn

Niftylift track boom lift drive

We rise to the challenge set by niftyliftEnquire online Niftylift customer supportNiftylifty — inokinetic.

Nifty lift 34'Lift track drive nifty tracks manlift aerial foot systems zoom rent dr pricing Nifty lift troubleshooting: unlock the secrets to faultless operationTrack drive boom lifts from niftylift.

Nifty Lift TM34 w/Hydraulic Outriggers - Pristine Solution, LLC
Nifty Lift TM34 w/Hydraulic Outriggers - Pristine Solution, LLC

Nifty lift troubleshooting: unlock the secrets to faultless operation

Make the most of your niftylift with niftyproNifty-lift on linkedin: nifty-lift cnc router Order spare partsNiftylift cage overload override reset code generator.

Niftylift customer supportNifty lift Nifty lift tm34 w/hydraulic outriggersNifty lift.

Nifty Lift 34′ | All Seasons Rent All
Nifty Lift 34′ | All Seasons Rent All

Sky operating services

.

.

Order Spare Parts - Niftylift USA
Order Spare Parts - Niftylift USA
NIFTYLIFT NIFTY TM SERIES OPERATING AND SAFETY INSTRUCTIONS MANUAL Pdf
NIFTYLIFT NIFTY TM SERIES OPERATING AND SAFETY INSTRUCTIONS MANUAL Pdf
Nifty Lift Troubleshooting: Unlock the Secrets to Faultless Operation
Nifty Lift Troubleshooting: Unlock the Secrets to Faultless Operation
Nifty Lift Troubleshooting: Unlock the Secrets to Faultless Operation
Nifty Lift Troubleshooting: Unlock the Secrets to Faultless Operation
Niftylift Elect2 | PDF
Niftylift Elect2 | PDF
Niftylift - redk
Niftylift - redk
We Rise To The Challenge Set By Niftylift | News | Hako
We Rise To The Challenge Set By Niftylift | News | Hako
Make the most of your Niftylift with NiftyPRO - Niftylift UK
Make the most of your Niftylift with NiftyPRO - Niftylift UK

Share: